진주시는 지난 5일 상대지구 도시재생사업 ‘글로컬 콘텐츠 캠퍼스 조성 설계공모’ 심사를 실시하고, 서울시 소재 헤이마건축사사무소가 최종 선정되었다고 밝혔다.

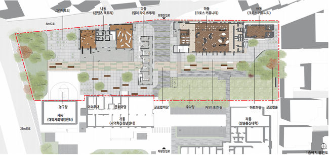
이번 설계공모는 구법원 부지에 기존 검찰청 별관, 구치소, 등기소 건물 등 4개 동 건물을 리모델링하여, 대학과 글로벌 문화시설이 결합된 글로벌 콘텐츠 캠퍼스를 조성하고자 마련됐다.
지난 5일 설계공모 심사위원회는 ‘글로컬 콘텐츠 캠퍼스’의 역할과 비전에 맞는 최적의 설계안을 선정하기 위해 상대지구 도시재생 지역 특화 방안에 따른 주변 지역의 조화와 문화 및 편의시설, 창업지원 공간 등 다양한 기능을 갖추고 최적의 계획을 수립했는지 여부 등에 주안점을 두어 심사했다.
당선작은 상대지구 도시재생사업의 주제인 크로스 컬처 타운을 기본 구상개념으로 하여, 기존 건축물의 공간을 새롭게 조성될 외부 커뮤니티와 연속성 있는 공간을 계획했다는 긍정적인 평가를 받았다. 또한 기존 공간을 최대한 활용하여 다양한 휴게공간을 제안하여 좋은 점수를 받았다.
당선작 설계자에게는 실시설계권이 부여되며 6월 실시설계용역 계약을 체결을 시작으로 약 5개월간의 용역을 거쳐, 글로컬 콘텐츠 캠퍼스는 내년 하반기 준공될 예정이다.
진주시 관계자는 “글로컬 콘텐츠 캠퍼스가 건립되면 지역주민, 청년, 다문화인들을 위한 창업지원, 문화전시공간 등 다양한 편의시설 등이 제공될 예정이다”며 “경상국립대학교, 한국방송통신대학교와 연계한 공공 민간협력의 글로컬 캠퍼스 조성으로 지역 활성화에 큰 역할을 할 거라 기대된다”고 말했다.






























